Van Santvoort Eersel

Robbert Diender

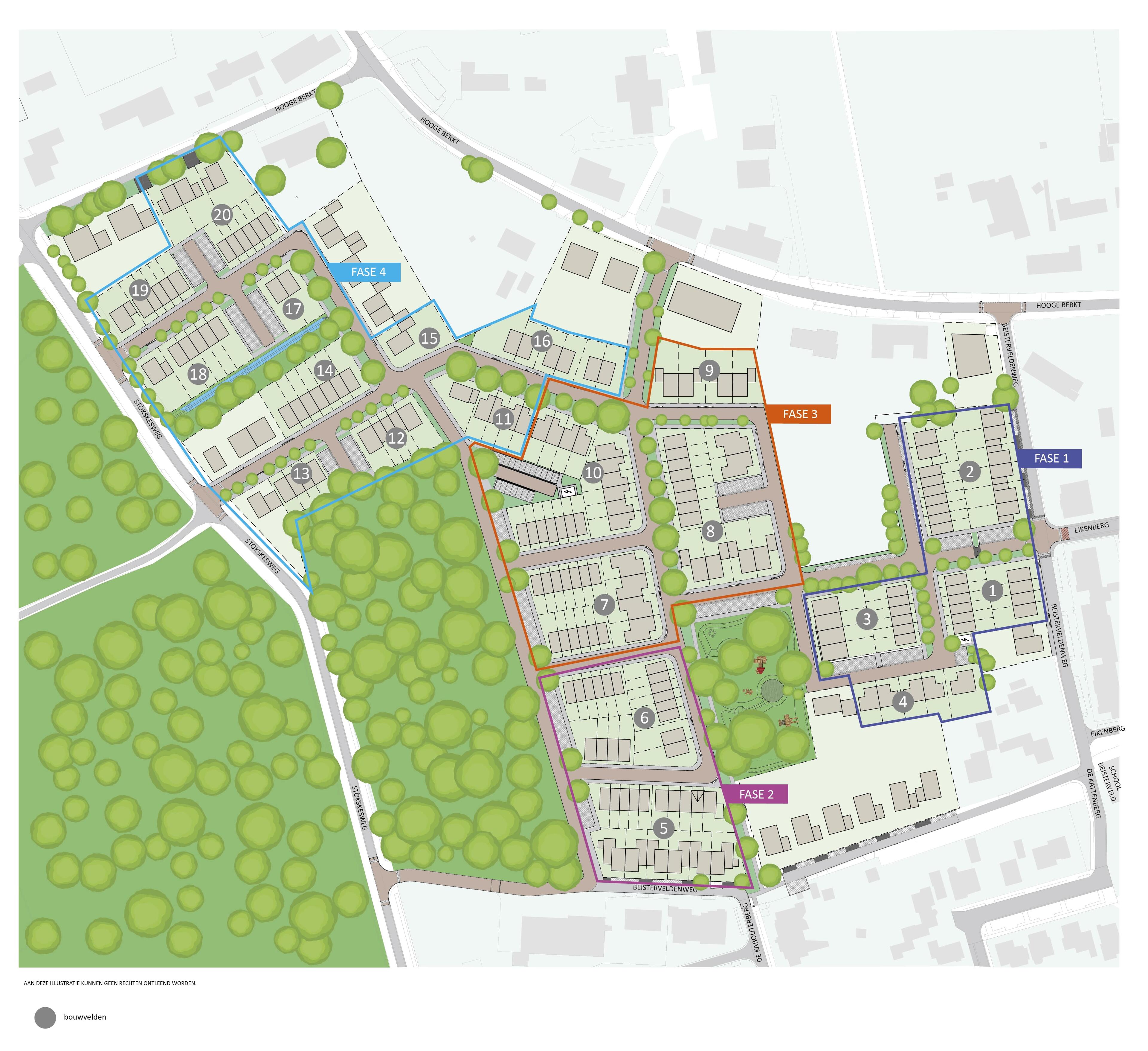
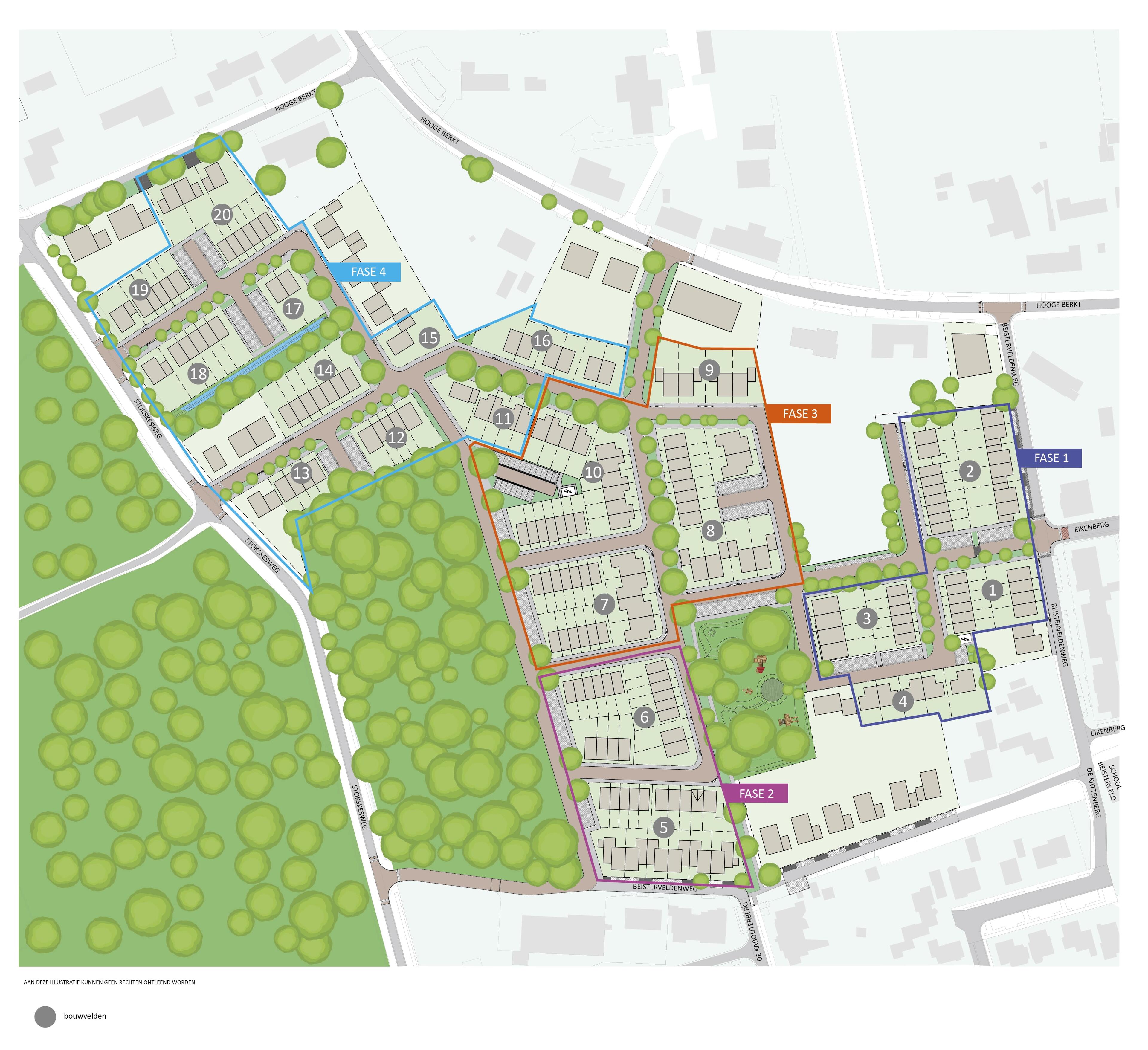
HoogeBerkt

Fase 4

Verkocht

📣 UPDATE: alle woningen zijn verkocht. Bekijk hier het aanbod in regio Bergeijk.

Bergeijk

HoogeBerkt

Verkocht

📣 UPDATE: alle woningen zijn verkocht. Bekijk hier het aanbod in regio Bergeijk.

Heerlijk wonen in Hooge Berkt - Bergeijk

Woningaanbod fase 4
In fase 4 worden in totaal 19 nieuwbouw koopwoningen ontwikkeld door Whoon - Van Schijndel Bouw- en Ontwikkelingsmaatschappij B.V. in uiteenlopende typen. Deze woningen zijn volledig gasloos, zeer energiezuinig (minimaal energielabel A+++) en zijn voorzien van een warmtepomp met bodemlus. Deze woningen zijn vrijwel onderhoudsvrij zodat je zorgeloos kunt genieten van de toekomst.

Uitstekend bereikbaar in de Brainportregio
Bergeijk biedt een unieke mix van landelijke charme en nabijheid tot de bruisende Brainport-regio. Via de Diepveldenweg ben jij snel verbonden met de A67 en belangrijke werkgevers in de Brainportregio, zoals de ASML-campus in Veldhoven en de HTC (High Tech Campus) in Eindhoven. Ook het openbaar vervoer in Bergeijk is goed geregeld.

Architectuur met karakter
Architect Willem Keeris zegt het treffend: "Alle woningen zijn uniek en toch verwant met elkaar." Bekijk de fraaie beelden op onze website en neem contact op met de verkoopmakelaars voor antwoord op jouw vragen.

Wonen in Bergeijk
Bergeijk is een prachtige gastvrije gemeente met twee sferen. Enerzijds heeft het een relaxte landelijke uitstraling met veel natuur en boerderijen, en aan de andere kant is er veel bedrijvigheid vanwege de nabijgelegen Brainport-regio. In de dorpskern 't Hof zijn diverse supermarkten en veel speciaalzaken, gastvrije restaurants en gezellige cafés. Scholen vind je in Bergeijk, Eersel en Valkenswaard. Voor hoger onderwijs, uitgebreid shoppen of uitgaan, rijd je in 20 minuten naar Eindhoven. Behalve dat je in er dagelijks kunt genieten van veel uitnodigend groen, zijn er ook veel activiteiten en evenementen op het gebied van cultuur. Zo wordt Bergeijk sinds 2017 het ‘Rietvelddorp’ genoemd. De befaamde architect en meubelontwerper Gerrit Rietveld ontwierp speciaal voor Bergeijk meerdere unieke objecten, zoals een klok, een abri, twee woonhuizen en zijn enige industriële werk: Weverij De Ploeg. Zijn stijl kenmerkt zich door ‘harmonie en rust’. Precies de karakteristieke kenmerken van Bergeijk! 

Bergeijk is een fijne gemeente voor rustzoekers. Maar ook als je wat wilt ondernemen, woon je hier geweldig. Je hebt er alle voorzieningen voor de dagelijkse behoeften.

Tijdlijn van een nieuwbouwproject
Op het moment dat het bekend is dat er woningen worden gerealiseerd in een bepaald gebied of project zijn nog niet alle details uitgewerkt. Een nieuw project of een nieuwe fase binnen een project doorlopen altijd een aantal stappen. We lichten deze stappen graag hier aan je toe.

Project updates
Wil je op de hoogte blijven van alle ontwikkelingen in Hooge Berkt - Fase 4?
Volg het project, en we houden je op de hoogte van alle ontwikkelingen via onze project nieuwsbrieven.

Planning

 
In ontwikkeling
 
Verkoopvoorbereiding
 
Voorinschrijven
Einde: 18-06-2024
 
Inschrijven
Einde: 03-07-2024
 
In verkoop
huidige status
Verkocht
 
Start bouw
 
In ontwikkeling
 
Verkoopvoorbereiding
 
Voorinschrijven
Einde: 18-06-2024
 
Inschrijven
Einde: 03-07-2024
 
In verkoop
huidige status
Verkocht
 
Start bouw

Beleef de wijk in 360º

Project in beeld

De omgeving

Legenda

  • Project
  • Sport
  • Onderwijs
  • Winkelcentrum/Supermarkt
  • Natuurgebied
  • Bezienswaardigheid

Nieuws en meer

Proces
Jouw weg naar een nieuw (t)huis: Zo werkt de online omgeving bij Mijn Whoon

Blijf altijd op de hoogte.

Blijf op de hoogte van (toekomstige) nieuwbouw in de regio.