Nikki Vermeeren

Van de Water Breda

Bouverijen
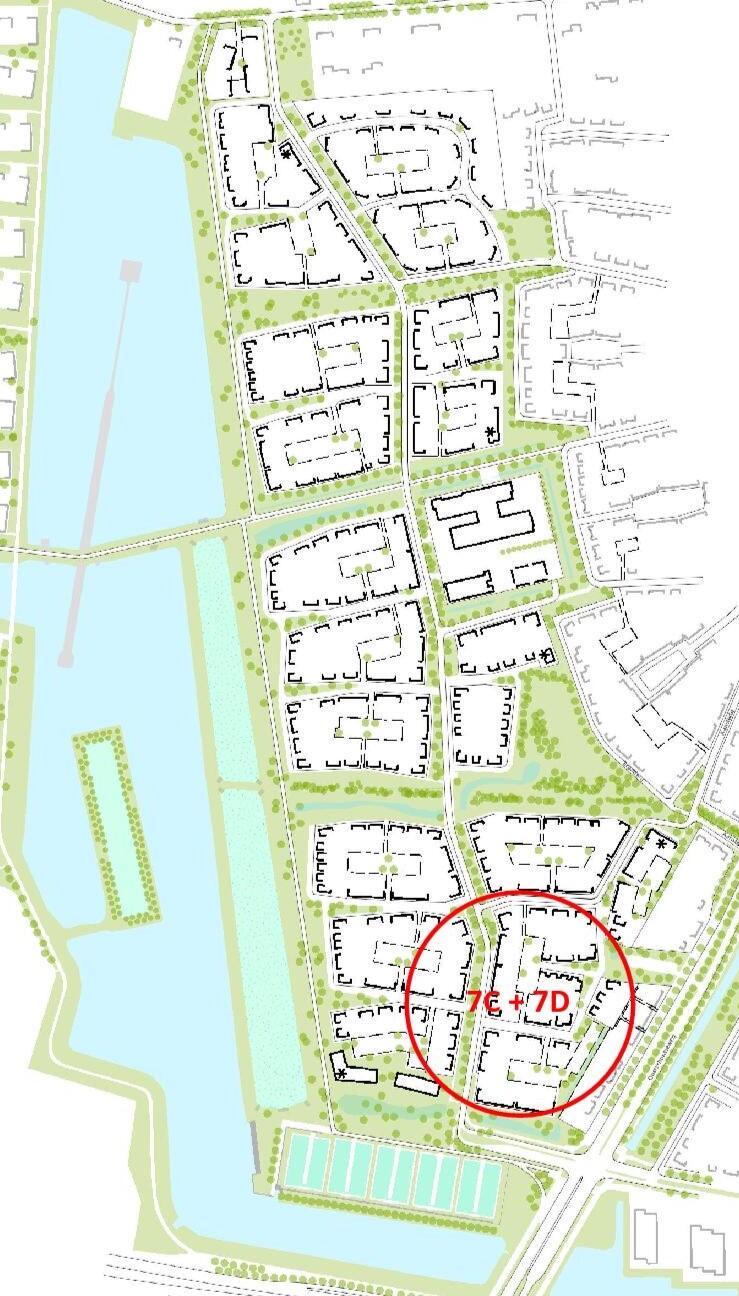
Fase 7C-7D

Verkocht

Heerlijk wonen in Teteringen

Bouverijen, tussen Teteringen en Breda, is een nieuwe wijk in aanbouw. Het aantrekkelijke van het project Bouverijen is dat het bestaat uit verschillende woningclusters die mooi in het groen liggen. In het zuiden van het plan zijn fase 7C en 7D in ontwikkeling.

Alle woningen verkocht

Groen is de dominante kleur in dit gebied aan de grens van Breda. Het plan is ruimtelijk opgezet, waarbij de auto’s in parkeerhoven komen te staan zodat ook de straten een zo groen mogelijk karakter houden. De gemeente legt diverse speelplekken voor kinderen aan in de groene lobben van de wijk. Hierdoor is het een ideale wijk voor jonge gezinnen.

Ben je geïnteresseerd?

Heb je interesse in dit project? Meld je via 'Volg project' aan voor de projectnieuwsbrief en wij houden je op de hoogte van nieuws en ontwikkelingen! Of stel je vraag aan de makelaar(s).

Woningaanbod

Project in beeld

De omgeving

Legenda

  • Project
  • Winkelcentrum/Supermarkt
  • Uitvalsweg
  • Natuurgebied
Wat zijn jouw woonwensen?
Geef je woonwensen door en blijf je op de hoogte van relevante nieuwbouwprojecten in de door jou aangegeven regio(’s)!
Vul je woonwensen in

Nieuws en meer

Contact met makelaar

Van de Water Breda
Nikki Vermeeren
Storimans en Partners
Bart Kimenai

Heb je vragen over dit project?