
š UPDATE: De bouw van fase 1A is gestart
Aan de zuidzijde van het dorp Heeze verrijst de nieuwe woonwijk De Bulders. De wijk is typisch Brabants kleinschalig met een gemoedelijke sfeer.
Duurzaamheid
Met onze standaard gasloze nieuwbouwwoningen kan de besparing op je maandelijkse energielasten oplopen tot wel 50%! Met de huidige tarieven scheelt je dit al snel honderden euroās per maand. Lees hier meer.
Fase 1a - verkocht
Alle 25 koopwoningen in fase 1a zijn verkocht. De bouw van deze fase is inmiddels gestart.
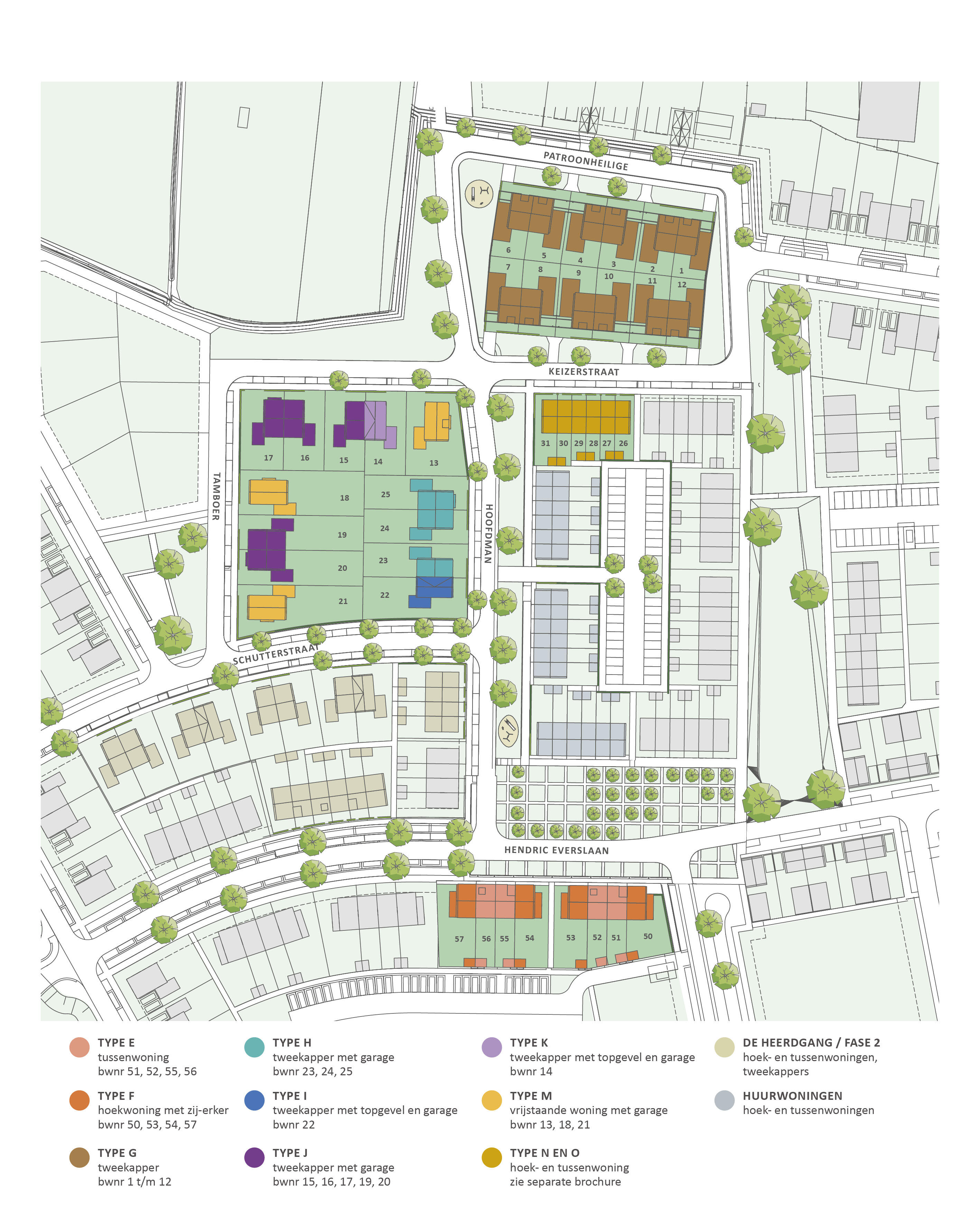
De Bulders
Het woongebied kent een goede ontsluiting door de nieuwe Randweg. De locatie biedt ruimte voor in totaal ca. 350 woningen. Aan de oostzijde van de nieuwe wijk realiseert Whoon het plan De Heerdgang. Dit plan bestaat uit 81 woningen (huur en koop) verdeeld over 2 fasen.
Omgeving
Het dorp Heeze is een gemoedelijk Brabants dorp waar je heerlijk kunt wonen. Rondom het dorp liggen prachtige bos- en heidegebieden waar je eindeloos kan wandelen, fietsen en genieten van de natuur. Het dorp zelf beschikt over twee supermarkten, meerdere basisscholen, leuke restaurantjes en diverse speciaalzaken. De verschillende sportclubs en dorpsevenementen maken het dorpsgevoel compleet. Mocht je toch de stad willen opzoeken? Heeze is uitstekend bereikbaar. Zo rijd je in een kwartiertje naar het centrum van Eindhoven en beschikt het dorp ook over een eigen treinstation.
Heb je interesse in dit project? Meld je via 'Volg project' aan voor de projectnieuwsbrief en wij houden je op de hoogte van nieuws en ontwikkelingen! Of neem direct contact op met de makelaars.
Download de verkoopbrochure van project De Heerdgang. Via e-mailontvang je een download link om de brochure (PDF) te downloaden.
Meld je aan voor de projectnieuwsbrief en het actuele woningaanbod in Regio Eindhoven. Aanpassen of afmelden kan via 'mijn notificaties'
Meld je aan voor updates over nieuwbouwproject De Heerdgang in Regio Eindhoven. En ontvang projectnieuws en woningaanbod updates uit de Regio Eindhoven. Aanpassen of afmelden kan via mijn notificaties.