Van Kessel & Van Gellicum

Marius van Gellicum

Fase Parkzicht

Type N

Verkocht

Geldermalsen-Meteren

Fase Parkzicht

Verkocht

Welkom in deze statige, eigentijdse nieuwbouwwoning! Deze ruime, vrijstaande woning met dwarskap, bijzondere topgevel en garage biedt je optimaal wooncomfort.

Of je hier nu samen met je partner gaat wonen, met jonge kinderen of met tieners, dit huis biedt alle ruimte aan iedereen. Met de uitbreidingsopties op de begane grond creƫer je bijvoorbeeld een fijne speel- of gamehoek voor de kinderen of maak je een fijn thuiskantoor voor jezelf. Of kies je liever voor een grote woonkeuken? Ook dat kan. Daarnaast is de woning zeer energiezuinig en onderhoudsarm. Dat is goed voor het milieu Ʃn jouw portemonnee.

Pluspunten

  • Zeer energiezuinige woning voorzien van warmtepomp met bodemlus (energielabel A)
  • Ruimte vrijstaande woning met bijzondere topgevel in sfeervolle architectuur met authentieke details
  • Veel woonruimte met een woonoppervlakte circa 184 m²
  • DwarsoriĆ«ntatie op een ruime kavel zorgt voor veel privacy, kaveloppervlakte circa 476 m²
  • Fraai gelegen aan een brede waterpartij
  • Vloerverwarming op alle verdiepingen
  • Met aangebouwde, geĆÆsoleerde garage en 2 parkeerplaatsen op eigen terrein
  • Lichte woonkamer door grote raampartijen
  • Standaard dubbele openslaande tuindeuren
  • Ruime eerste verdieping met 3 slaapkamers, badkamer en apart toilet
  • Grote tweede verdieping, met meerdere indelingsmogelijkheden
  • Veel lichtinval door de grote raampartijen
  • Diverse indelings- en uitbreidingsmogelijkheden


Indeling
De indeling is bijzonder praktisch met beneden een hal met toilet en garderobe, een lichte L-vormige woonkamer, een open keuken met ruime eethoek. Met sfeervolle erker in de zijgevel, ruimte zithoek aan de straatzijde en een heerlijke leefkeuken aan tuinzijde

De begane grond kan vergroot worden met een uitbouw van 1.20 of 2.40 meter, waarbij de keuken eventueel naar de voorzijde verplaatst kan worden. Met de optie om de garage te verlengen en/of te splitsen in een berging en een ruimte bij de woning te betrekken, creƫer je extra veel leefruimte op de begane grond. Op de verdieping vind je de overloop, een apart toilet, drie ruime slaapkamers en een complete badkamer met douche, ligbad en wastafel.

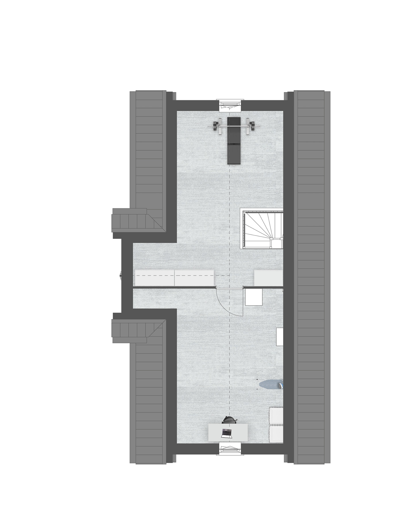
De tweede verdieping is met een vaste trap bereikbaar en biedt je een zee aan ruimte. De zolder is standaard voorzien van ramen aan voor- en achterzijde en met veel licht en ruimte door de dwarskap. Met een combinatie van diverse indelingsopties maak je hier een prachtige woonverdieping van.

Zie jij jezelf hier al wonen?

Woningimpressie

Waar ligt deze woning?

Plattegronden & opties

Verkoopdocumentatie

Verkoopinformatie
Opties
Algemeen

Contact met makelaar

Van Kessel & Van Gellicum
Marius van Gellicum

Heb je vragen over dit project?

Huysinc
Specialist in keukens, badkamers en tegels
Ontdek Huysinc

Blijf altijd op de hoogte.

Blijf op de hoogte van (toekomstige) nieuwbouw in de regio.