Per woningtype bieden we je meerdere mogelijkheden om de begane grond van de woning aan te passen aan je eigen wensen. Bijvoorbeeld een uitbouw aan de achterzijde en een gedeelte van de oorspronkelijke garage bij je leefruimte betrekken, zorgt voor een extra ruime woning. Je kunt de verlenging van de garage ook gebruiken om hier de keuken naartoe te verplaatsen om, bijvoorbeeld een extra grote leefkeuken te creëren. Of je garage opsplitsen in een praktische (fietsen)berging en een speelkamer voor de kinderen of juist een fijne werkkamer voor jou of je partner. Genoeg te kiezen.
Met een aanbouw en openslaande tuindeuren betrek je de buitenruimte op een natuurlijke manier bij je binnenruimte.
Zo heb je én extra ruimte én extra licht in je woonkamer.
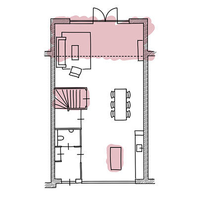
Creëer een extra ruime keuken door de helft van de garage bij de kamer te trekken en een uitbouw te kiezen.
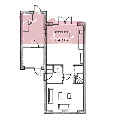
Door je woning aan de achterzijde uit te bouwen en de garage op te splitsen creëer je extra ruimte voor bijvoorbeeld een volwaardige werkkamer op de begane grond.
Even samenvatten. De meest gekozen opties voor de begane grond. Bekijk de opties en uitbreidingsmogelijkheden van jouw woning op de projectwebsite en in de projectbrochure.
Bekijk ook de woningopties van de 1e verdieping en de 2e verdieping. Binnenkijken bij andere nieuwbouwbewoners? Bekijk ons inspiratiemagazine Kies.
Download de verkoopbrochure van project {{ projectName }}. Via e-mailontvang je een download link om de brochure (PDF) te downloaden.
Meld je aan voor de projectnieuwsbrief en het actuele woningaanbod in {{ regionName }}. Aanpassen of afmelden kan via 'mijn notificaties'
Meld je aan voor updates over nieuwbouwproject {{ projectName }} in {{ regionName }}. En ontvang projectnieuws en woningaanbod updates uit de {{ regionName }}. Aanpassen of afmelden kan via mijn notificaties.