Hooge Berkt

Landelijk en comfortabel wonen in Bergeijk

Aan de noordwestzijde van Bergeijk ontwikkeld 'GEM Hooge Berkt' (een samenwerking tussen Whoon Van Schijndel Ontwikkelmaatschappij, Bouwbedrijf van Montfort en Buro Sengers) een prachtig nieuwe buurt. Deze nieuwe woonwijk zal bestaan uit circa 200 nieuwbouw woningen, in diverse woningtypes, die volledig beantwoorden aan de eisen van deze tijd. 

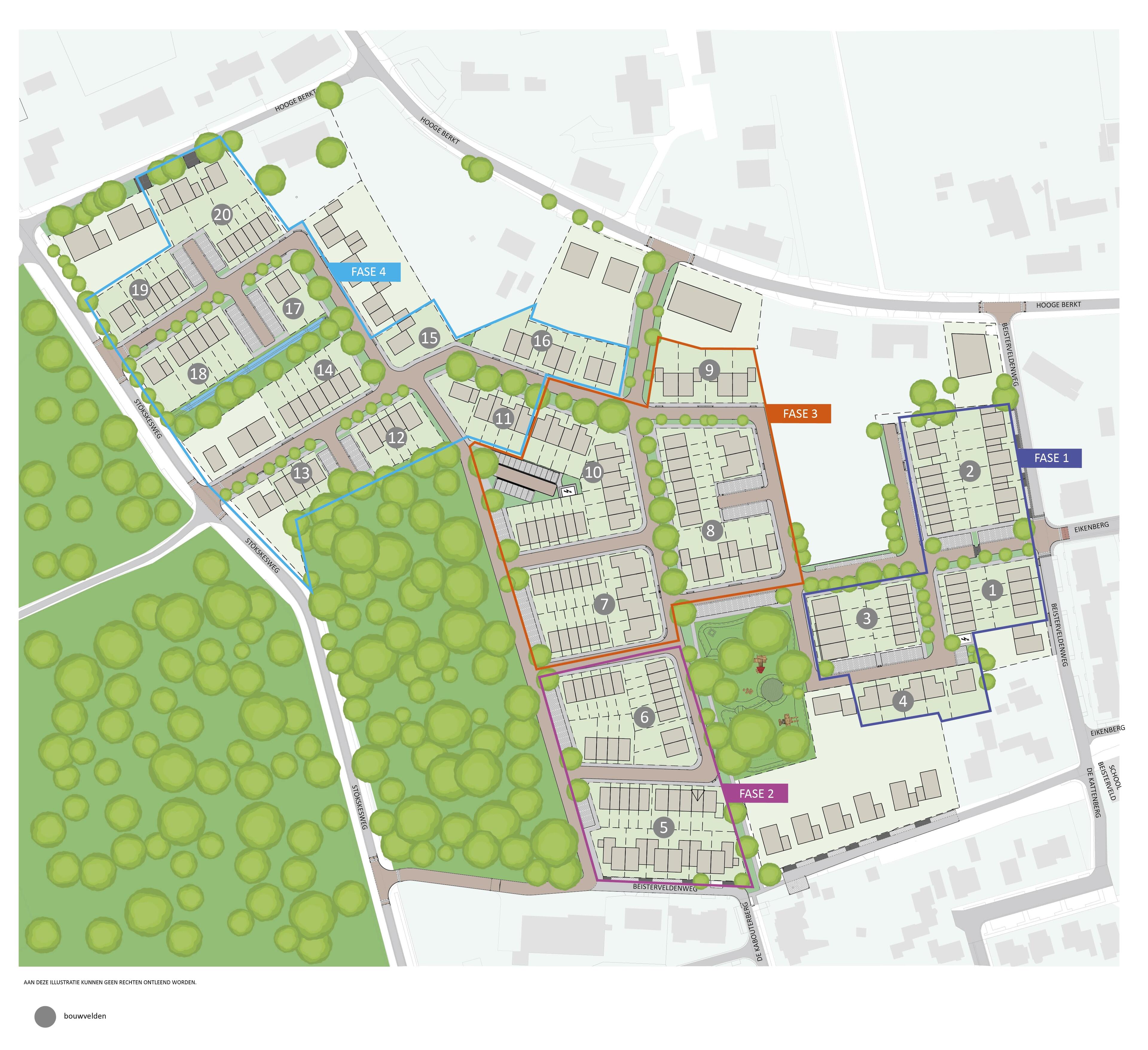
Fasering Hooge Berkt
In nieuwbouwproject Hooge Berkt worden meerdere bouwvelden ontwikkeld. Hieronder een actueel overzicht. Bekijk het inrichtingsplan.

 

Projectupdate
Alle nieuwbouwwoningen op de Hooge Berkt zijn verkocht door de ontwikkelaars. Op dit moment worden fase 1, 2 en 3 gerealiseerd door de bouwkundig aannemers.

De eerste woningen zijn inmiddels opgeleverd. Naar verwachting wordt einde 2025 gestart met het woonrijp maken van de 1e fase.

Meer weten over Hooge Berkt?

Wil je makkelijk op de hoogte blijven van nieuwbouw project Hooge Berkt? Meld je dan eenvoudig via 'Volg project' aan voor onze projectnieuwsbrief en wij houden je op de hoogte van nieuws en ontwikkelingen!

Beleef Hooge Berkt

Voortgang bouw Hooge Berkt - mei 2025

Start Bouw evenement - oktober 2024

Project in beeld

De omgeving

Legenda

  • Project
  • Sport
  • Onderwijs
  • Winkelcentrum/Supermarkt
  • Natuurgebied
Welkom in Bergeijk
Bergeijk een prachtige gemeente in het zuiden van Nederland, met veel groen, rust en ruimte. Vlak bij Eindhoven in de Brainport regio. Het dorp biedt vele voorzieningen en culturele activiteiten, die zorgen voor een bruisende sfeer. Kortom, een geweldige plek om te wonen.

Betrokken partijen

Projectontwikkeling
Whoon - Van Schijndel Bouw- en Ontwikkelings-maatschappij B.V
Projectontwikkeling
OC Hooge Berkt BV (Buro Sengers, Bouwbedrijf Van Montfort BV)