Hiermee schrijf je je in voor de projectnieuwsbrief.
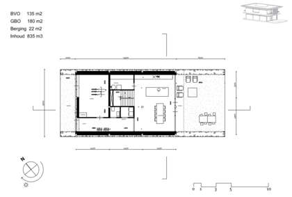
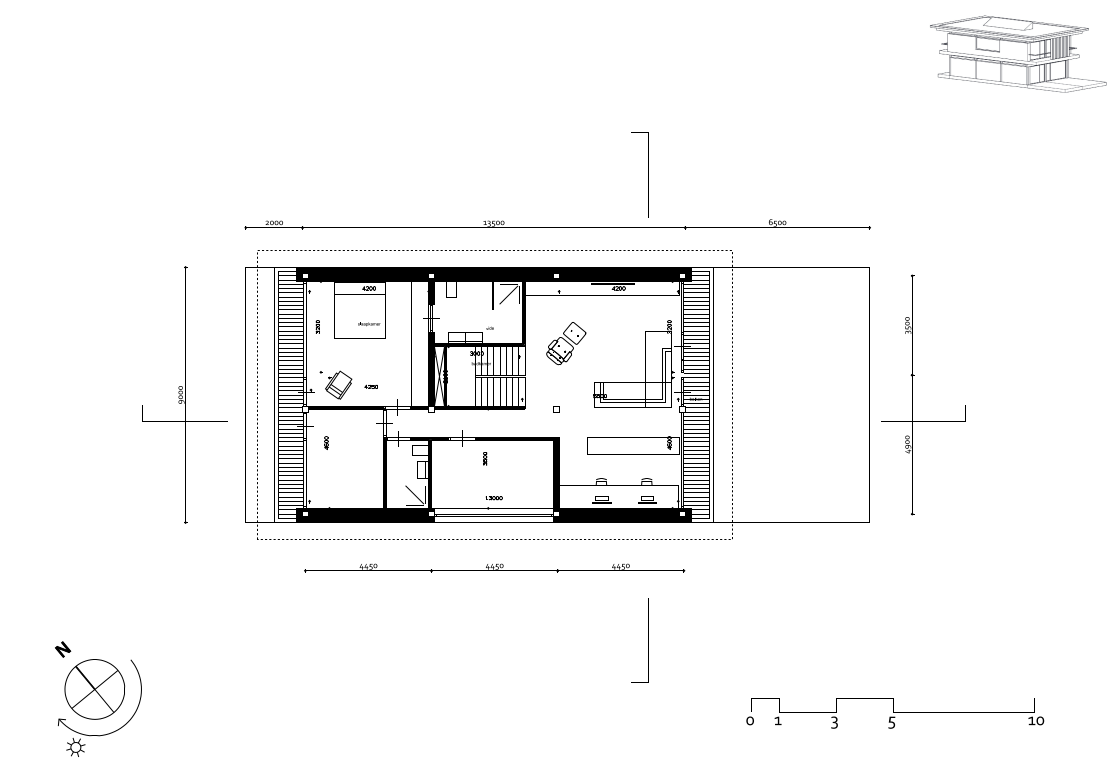
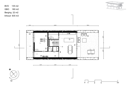
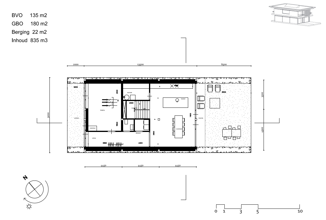
Een lichte, ruime woning met flexibele indeling. Wonen op de begane grond en slapen boven – of juist andersom? Alles is mogelijk. De grote leefkeuken op de begane grond grenst aan een zonnig terras. Boven vind je een royale woonkamer met uitzicht over de Wetering en twee comfortabele slaapkamers. De buitendeuren kunnen open – en de natuur stroomt naar binnen. Download de Spelregels brochure met alle informatie.
Indicatieve investering: € 1.250.000
Waarom kiezen voor wonen op Landgoed Coudewater?
✔ Unieke locatie aan ecologische verbindingszone
✔ Direct uitzicht op de Wetering en natuurgebied
✔ Architectuur met oog voor duurzaamheid en inclusiviteit
✔ Wonen in een natuurinclusieve en toekomstbestendige omgeving
✔ Volledige vrijheid om je woning samen met de architect te ontwerpen
Interesse? Vertel ons waarom jij hier wilt wonen
Wil jij kans maken op één van deze unieke kavels? Schrijf je dan in via ons inschrijfformulier. Vertel ons waarom jij hier wilt wonen, wat je aanspreekt in deze plek, en wat jouw droomwoning is. Boumij Makelaars neemt vervolgens contact met je op.
Hiermee schrijf je je in voor de projectnieuwsbrief.
Download de verkoopbrochure van project Landgoed Coudewater. Via e-mailontvang je een download link om de brochure (PDF) te downloaden.
Meld je aan voor de projectnieuwsbrief en het actuele woningaanbod in Regio Den Bosch. Aanpassen of afmelden kan via 'mijn notificaties'
Meld je aan voor updates over nieuwbouwproject Landgoed Coudewater in Regio Den Bosch. En ontvang projectnieuws en woningaanbod updates uit de Regio Den Bosch. Aanpassen of afmelden kan via mijn notificaties.