Hiermee schrijf je je in voor de projectnieuwsbrief.
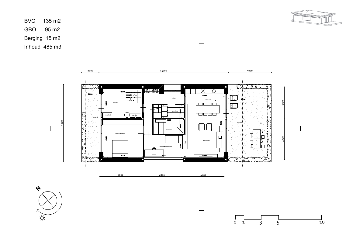
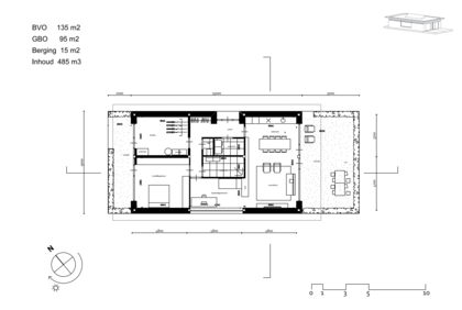
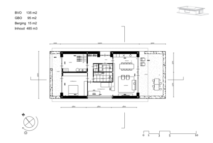
Compact, gelijkvloers en bijzonder comfortabel. Deze stijlvolle bungalow biedt alles wat je nodig hebt: een ruime woonkamer met open keuken, 1 à 2 slaapkamers en een praktische berging. Ideaal voor wie kleiner wil wonen op een werkelijk unieke plek. Download de Spelregels brochure met alle informatie.
Indicatieve investering: € 950.000
Waarom kiezen voor wonen op Landgoed Coudewater?
✔ Unieke locatie aan ecologische verbindingszone
✔ Direct uitzicht op de Wetering en natuurgebied
✔ Architectuur met oog voor duurzaamheid en inclusiviteit
✔ Wonen in een natuurinclusieve en toekomstbestendige omgeving
✔ Volledige vrijheid om je woning samen met de architect te ontwerpen
Interesse? Vertel ons waarom jij hier wilt wonen
Wil jij kans maken op één van deze unieke kavels? Schrijf je dan in via ons inschrijfformulier. Vertel ons waarom jij hier wilt wonen, wat je aanspreekt in deze plek, en wat jouw droomwoning is. Boumij Makelaars neemt vervolgens contact met je op.
Hiermee schrijf je je in voor de projectnieuwsbrief.
Download de verkoopbrochure van project Landgoed Coudewater. Via e-mailontvang je een download link om de brochure (PDF) te downloaden.
Meld je aan voor de projectnieuwsbrief en het actuele woningaanbod in Regio Den Bosch. Aanpassen of afmelden kan via 'mijn notificaties'
Meld je aan voor updates over nieuwbouwproject Landgoed Coudewater in Regio Den Bosch. En ontvang projectnieuws en woningaanbod updates uit de Regio Den Bosch. Aanpassen of afmelden kan via mijn notificaties.