Natasja Vissers

Van Santvoort Eindhoven

Filters

Woningtypes binnen dit project

Filter op woningtype

 
Vanaf
 
 
Vanaf
 
 
Vanaf
 
 
Vanaf
 
 
Vanaf
 
 
Vanaf
 
 
Vanaf
 
 
Vanaf
 
 
Vanaf
 
 
Vanaf
 
# resultaten
Soort
Type
Gebruiksopp.
Perceel
Prijs
Status
#
 
 
 
 
 
 
#
 
 
 
 
 
 
#
 
 
 
 
 
 
#
 
 
 
 
 
 
#
 
 
 
 
 
 
#
 
 
 
 
 
 
#
 
 
 
 
 
 
#
 
 
 
 
 
 
#
 
 
 
 
 
 
#
 
 
 
 
 
 

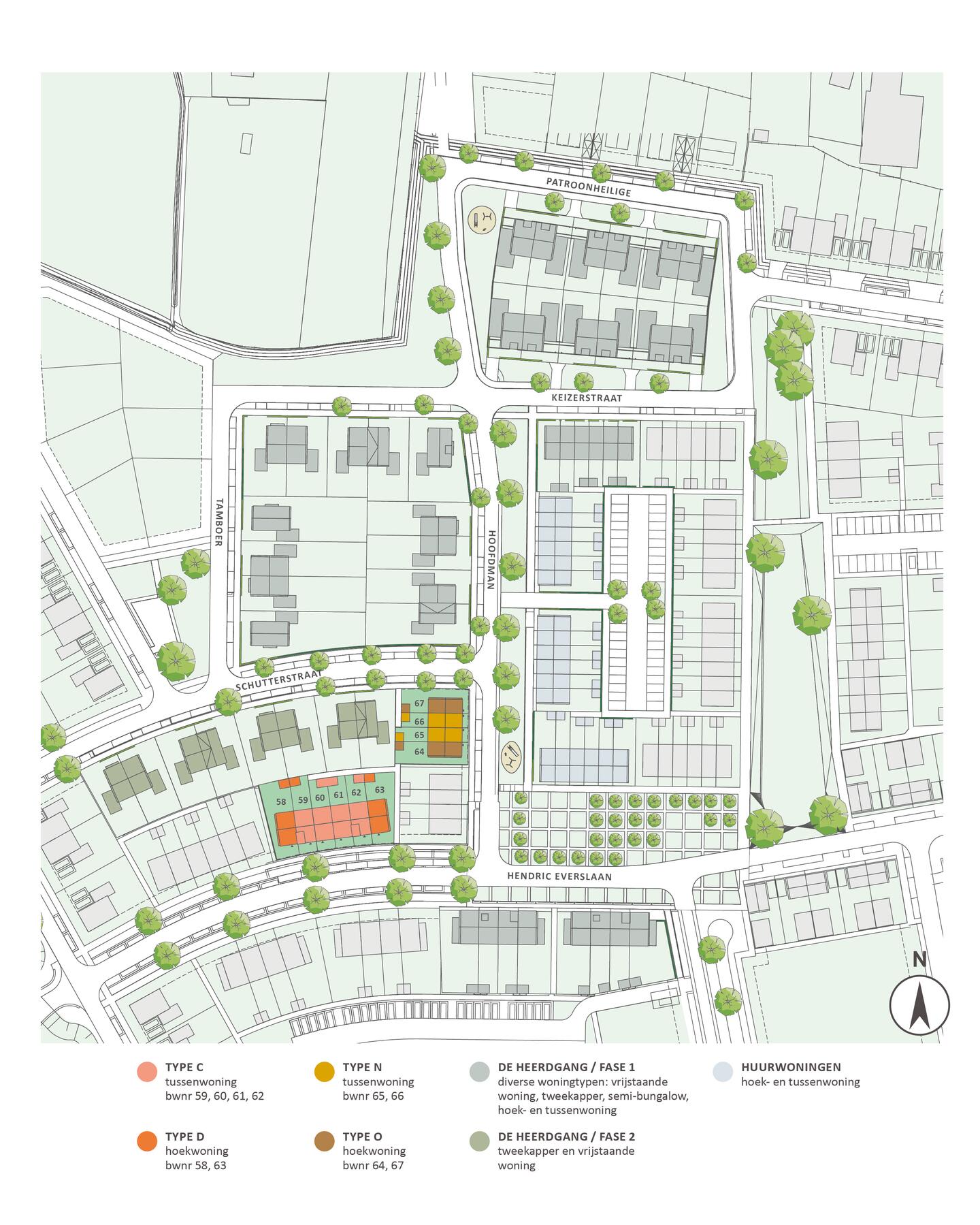
Kavelkaart

Contact met makelaar

Van Santvoort Eindhoven
Maureen Geraets
Van Santvoort Eindhoven
Natasja Vissers

Heb je vragen over dit project?

Huysinc
Specialist in keukens, badkamers en tegels
Ontdek Huysinc